descargar planos PDF
return
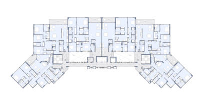
4 Apartamentos y una torre     
The development is located in a zone  where  city has experimented          high expansion   rates. The lot is surrounded  by  a  golf course and is located near one of the  main  road  of Panama City. Apartments between 215 and 235 sqm are distributed on 8 levels with 6 apartments per level. Each   one  has living  room, terrace  and master bedroom   with nice views. The access corridor on each  level  works as a green   screen, preserving the    comfort   of    the building and  resembling a walk on the  garden,  from which  has  access  to   a private  terrace   on each apartment. The   turnaround   of  the wings reinforces unity and trims    the    building’s length.
C/ Pacific Plaza, Office 6    San Francisco - Panama City - PanamaMobile  +507  6525 1721
menu